Timber
Project 03 — Individual Elaboration

Timber
Apartment
Blocks

Eindhoven, Netherlands — 2024

TypeIndividual Design Elaboration
LocationEindhoven, NL
Year2024
ProgrammeBSc Architecture, TU Eindhoven
Scroll
Timber ConstructionEindhovenApartment BlocksIndividual ProjectMass TimberArchicadSustainable HousingGreen spaceTimber ConstructionEindhovenApartment BlocksIndividual ProjectMass TimberArchicadSustainable HousingGreen Space

Overview

Project TypeIndividual Design Elaboration
LocationEindhoven, Netherlands
Academic Year2023 – 2024
InstitutionTU Eindhoven AUBS
Tools UsedArchicad · Twinmotion · Adobe Cloud

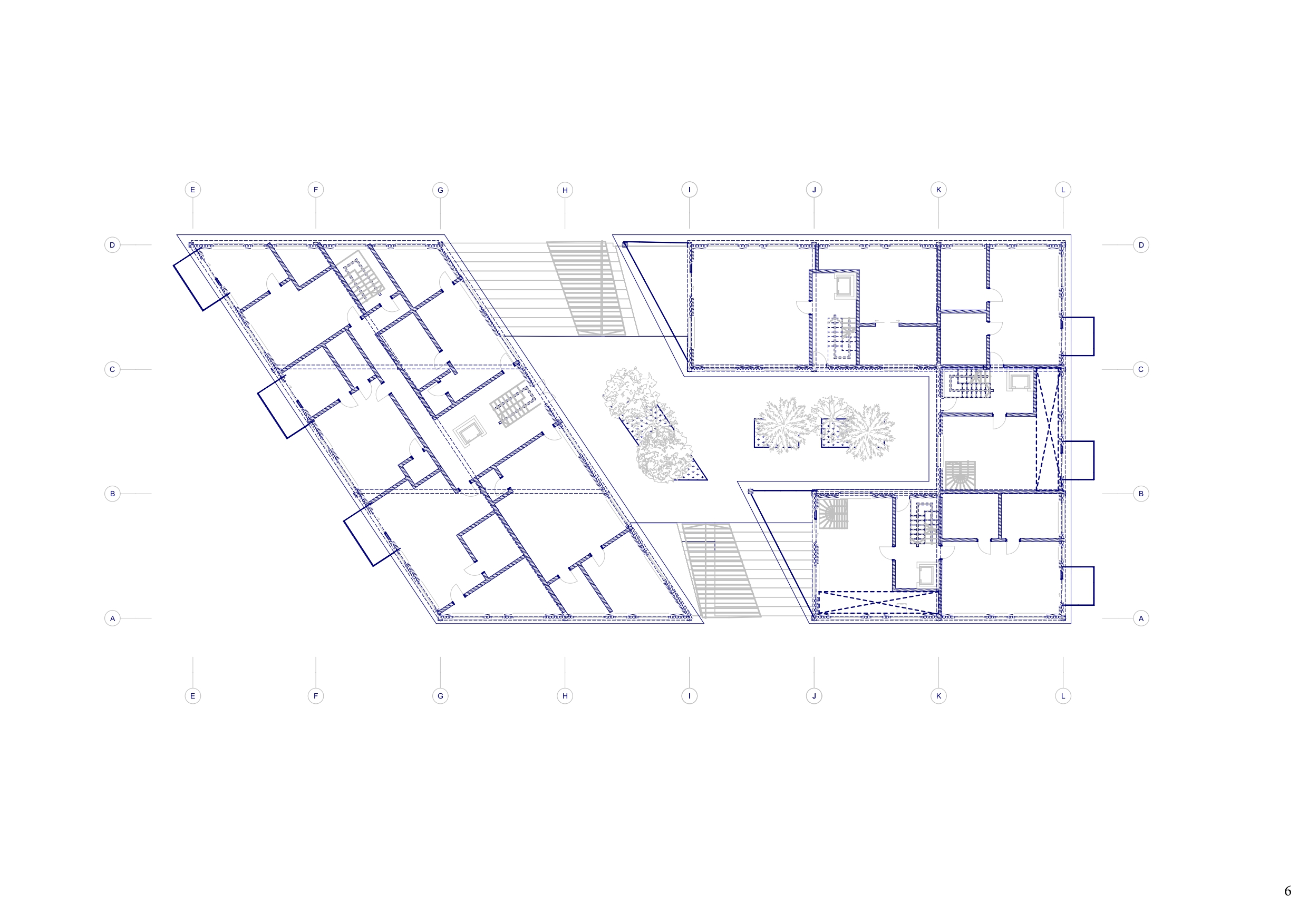
The original design of the apartment complex faced several problems; including disorganized layouts leading to a chaotic exterior, cramped floor plans, unclear and inaccessible entry points, limited privacy due to big windows in bedrooms, and a lack of cohesion between buildings. To solve the research question and these problems, several analysis has been done. From this re search multiple improvements were made such as a parking space underneath the buildings for both cars and bicycles. Extra storage is also included in this space on the ground floor. This change in creating some sort of platform and elevating the building also led to more privacy for all apartments and an improvement in the cohesion of the buildings as that the buildings are more connected with each other in this way.

I learnt most from this individual elaboration on how to work further with a design that mostly another colleague has created. It was also focused on basing design decisions on research and investigating potential clients needs.

Timber structureColumn - Beam GridStepped SectionGreen TerracesCircular MaterialsResidentialFacade
PreviousEco Flow, Eindhoven
All Work
NextFensterrein Apartment Blocks, Eindhoven